





9
Villa in Al-Rabwa neighborhood
Fully renovated villa for sale three years ago:
- Area: 600 square meters
- Two separate floors (ground and upper)
- Villa façade faces south, Street 12
- Two electric meters (one per floor)
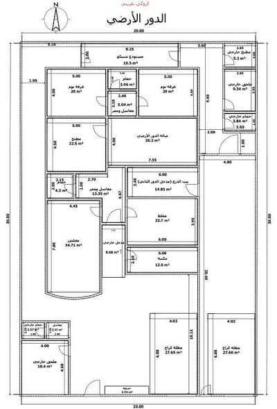
- Land dimensions 20 x 30 meters (frontage 20)
- One water meter
- Central gas cylinder
- Fiber optic internet service available from Etisalat/Etisalat (telecommunications)
- Each floor has an independent door
- Description:
* Ground floor (First): Large living room, two bedrooms, kitchen, two bathrooms, two salons, library/store, Shinko storage, rear annex, rear Shinko annex, each floor with its own shaded garage.
** Second floor: Large living room, two bedrooms, two bathrooms, kitchen, laundry room, two salons, storage.
** Third floor (rooftop): - one bedroom, bathroom, external Shinko storage, roof.
- Age is about 40 years or a bit more
- Complete thermal plumbing
- Renovated and ready to move in
- Divided and rentable (ground floor rents for about 70, second floor and roof for about 70, annex between 10 to 15)
The property is close to all services including: nearby mosque to villa 140 meters - girls primary school (100 meters) - metro station (one kilometer)
- Area: 600 square meters
- Two separate floors (ground and upper)
- Villa façade faces south, Street 12
- Two electric meters (one per floor)
- Land dimensions 20 x 30 meters (frontage 20)
- One water meter
- Central gas cylinder
- Fiber optic internet service available from Etisalat/Etisalat (telecommunications)
- Each floor has an independent door
- Description:
* Ground floor (First): Large living room, two bedrooms, kitchen, two bathrooms, two salons, library/store, Shinko storage, rear annex, rear Shinko annex, each floor with its own shaded garage.
** Second floor: Large living room, two bedrooms, two bathrooms, kitchen, laundry room, two salons, storage.
** Third floor (rooftop): - one bedroom, bathroom, external Shinko storage, roof.
- Age is about 40 years or a bit more
- Complete thermal plumbing
- Renovated and ready to move in
- Divided and rentable (ground floor rents for about 70, second floor and roof for about 70, annex between 10 to 15)
The property is close to all services including: nearby mosque to villa 140 meters - girls primary school (100 meters) - metro station (one kilometer)
Property Information
- TypeVilla
- PurposeFor Sale
- Bayut IDBayut - 87871974
- Residence TypeFamily
- CompletionReady
- FurnishingUnfurnished
- Added on22 January 2026
Features / Amenities
Electricity
Water Supply
Fixed Phone
Sewerage
REGA Verified Information
- FAL License Number1200010379
- License Issue Date22 January 2026
- License Expiry Date24 July 2026
Ad Responsible Info
- Responsible Nameعبدالرحمن عبدالمحسن محمد النافع
- Responsible Number0599556963
Location
- Regionمنطقة الرياض
- CityRiyadh
- DistrictAl Rabwah
- Street Nameعبدالسلام بن عبدالله
- Postal Code12838
- Building No3044
- Additional No6754
- Latitude24.679774736205747
- Longitude46.764520726277
Property Specs
- Advertisement TypeFor Sale
- Listing Usage-
- Listing TypeVilla
- Price2700000
- Area Size600
- Number of Rooms6
Utilities
- ElectricityYes
- SewerageYes
- Fixed PhoneYes
Additional Information
- Listing Age10+ years
- Street Width12
- Plan Number720
- Deed Number5662732132700000
- Listing FaceSouthern
- Borders and Lengths-
- Guarantees and Duration-
- ChannelsSocial media platforms, Bulletin board
- Obligations on Listingلايوجد
- Compliance with Saudi Building Code-
- Is Listing PawnedNo
- Is Listing ConstrainedNo
- Land Number615/20
- Notes-
Property Borders
North
East
West
South
Loan Calculator
Location & Nearby
The location is fetched and verified by REGALocation Description as per Deed:N/A

See location
Beware of fraud, Transfer through official channels. Posting on behalf of others leads to legal liability.













